纬地挡土墙综合CAD系统是纬地软件结合工程设计实践开发完成的一套专业挡土墙设计软件系统,其功能包括:各种型式挡土墙的稳定性验算,挡土墙平立面动态布设和修改,平、立、横断面设计绘图、标注,以及全墙圬工数量的统计和出表等。
该系统不仅可以独立运行,更可以与纬地三维道路CAD软件完全配套应用(效率更高也更方便),与以往的挡土墙绘图软件相比,纬地挡土墙设计系统具有以下优势和亮点:
1、 直接提取并利用纬地道路CAD的平、纵、横设计资料和成果数据,方便准确,解决了以往挡土墙绘图软件需要用户手工逐桩输入;


5、 批量输出挡墙平、立面设计图并统计圬工数量。
【主要功能和适用范围】提供多种类型挡土墙的动态布设、交互式修改和自动绘图功能;支持重力式、仰斜式、衡重式等路肩墙、路堤墙、路堑墙、护面墙和坡脚小矮墙,以及部分新型、轻型挡墙设计等;适用于公路、铁路工程的挡土墙设计任务,可大幅度提高挡墙设计效率。
【通用图设计功能】内置大量挡墙通用图库(标准图库),支持直接套用通用图的快速设计模式,满足常规项目设计需求;提供自学习式的挡墙通用图库,支持对通用图库的用户自定义和编辑修改等功能。
【交互式动态布设功能】提供各类型挡墙的平、立面动态交互式布设功能;支持通过鼠标拖动挡墙分段位置、墙高变化,同时实时刷新墙底埋置深度和墙底高程等信息;支持多种墙底纵坡变化模式,包括水平、给定坡度,或随路线纵坡等。
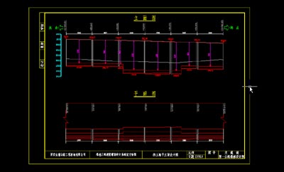
【绘图和圬工统计】自动计算路基内、外侧挡墙分段与长度,自动批量绘制项目全线(或分段)挡墙平立面布置图、横断面布置图;准确统计并输出各类型挡土墙的圬工数量表及路基防护工程数量表等;支持用户自定义成果表格样式与变化。
【与纬地路线集成功能】系统与纬地系列软件高度集成;可直接基于“纬地道路三维集成CAD系统”的项目数据,实现挡墙布置和设计过程,避免基础数据重复录入等过程。
【验算功能】提供对多种通用型挡土墙的稳定性验算功能;可快速完成常规类型挡墙抗滑、抗倾覆验算,并自动输出计算书;支持地震、浸水等因素对挡墙稳定性的影响。
【BIM设计功能】支持基于BIM技术的挡墙布设模式;支持在动态布设过程中,通过旋转视口(至三维状态)方式,即可直观浏览到支挡构造物的BIM模型,实时检查其与路基、边坡等相交情况。
Copyright(C) 纬地软件 销售电话:029-88450051/88450052/88450053转881/882/883/885/886/888
地址:西安市高新区沣惠南路20号华晶商务广场B座901室 邮编:710075 陕ICP备11001822号